Signed in as:
filler@godaddy.com
Signed in as:
filler@godaddy.com

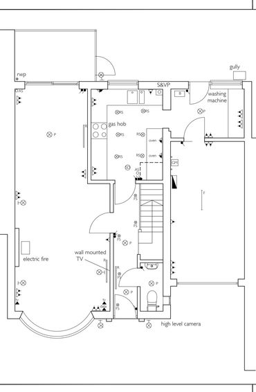
Internal ground floor structural alterations and full refurbishment to the whole house. This Compromised of 2 living rooms, Kitchen, Utility room, 3 Bathrooms & 3 Bedrooms.
When the clients approached us through a recommendation the Architects drawings, planning permission and building regs were already in place and they were keen to get there forever home exactly how they wanted it. When we first met with the client they really wanted a secret door leading to a secret room, this happened and turned out incredibly well. We knocked walls down on the ground floor and installed steels to open up there kitchen. Ripped out the existing bathrooms and reconfigured, rewired and re plumbed the whole house. Applied fresh plaster to all ceilings and walls and had it fully decorated. New flooring and carpets throughout.
Brief outline of works
Project management from start to finish
Knocked walls down & Installed steels
New Patio doors and ground floor rear windows
Rewire & New plumbing services
New Plaster and Decoration throughout
New carpentry/joinery
New kitchen and tiling
Externally
New tiled roof, membrane & lead work
Repointed the back of the house
Made good old brickwork repairs
Garden Landscaping














































